
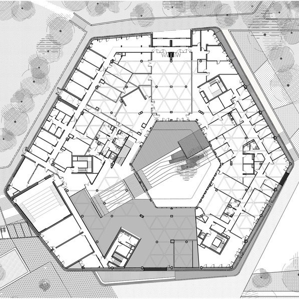
Hexagon: who has not heard of the Library of Babel, described by librarian Jorge Luis Borges? ‘The universe (which others call the Library) is composed of an indefinite, perhaps an infinite number of hexagonal galleries, with enormous ventilation shafts in the middle, encircled by very low railings. From any hexagon the upper or lower stories are visible, interminably.’





