Architects and art historians use typologies to identify common features or guiding principles of buildings. It is a way of looking systematically and objectively at commonalities or resemblances between buildings. Recognizing and using typologies can give direction in the design process of a new library building.
Designing the public library of tomorrow has become a challenging task. If librarians and architects are complementary partners in this process, it can lead to new, jointly developed typologies.

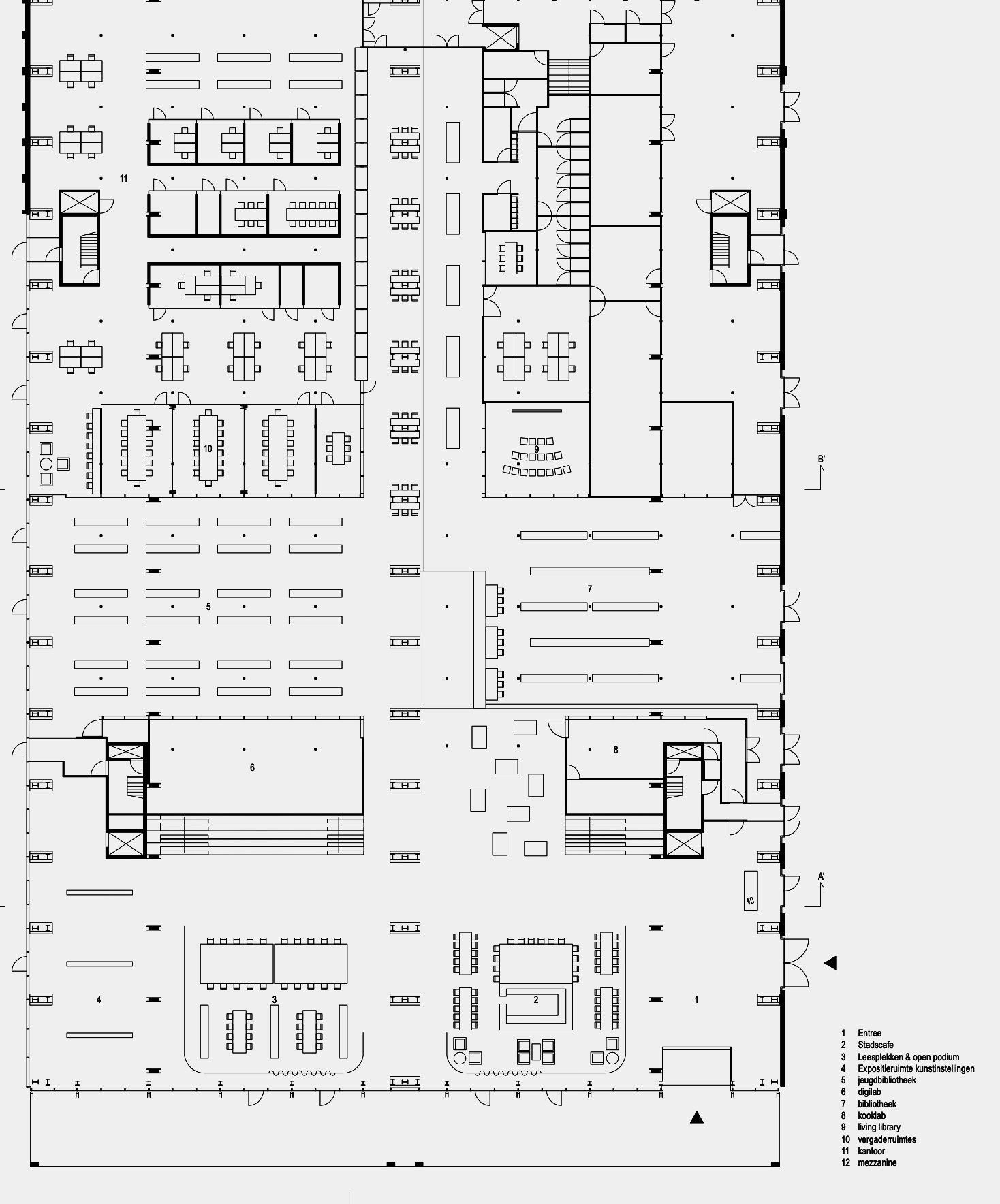
HOW THE COUNTER DISAPPEARED FROM THE PUBLIC LIBRARY BUILDING.
The transition from a ‘passive’ library, which collects, unlocks, and makes its collection accessible, to an ‘active’ library, in which users are invited to engage.
The emphasis is no longer primarily on the distribution of media, but on all kinds of creativity and participation. It means that the lending function of the library is becoming less dominant. Not only are fewer and fewer physical books being lent out, but the logistics and technology of lending are also changing, and this is having a major impact on the layout of the building. For a very long time, the counter, as the pivotal point for all lending logistics, demanded a central place in every design and thus acquired an almost iconic function.

























